Smart Container Home Plans That Maximize Every Square Foot

Designing a container home is an exercise in intentional living. Unlike traditional homes, where extra square footage can hide inefficient layouts, shipping container homes force every decision to matter. A standard shipping container offers a long, narrow footprint with limited width, which means thoughtful floor planning is not optional, it’s essential.

The best container home plans do more than simply fit rooms into a box. They create a sense of flow, use furniture as part of the architecture, and rely on light, storage, and adaptability to make compact spaces feel livable and even luxurious.

Whether you’re working with a single 40-foot container or planning a multi-container build, smart floor plan ideas can transform a steel shell into a highly functional, modern living home that feels far larger than it is.

Why Shipping Container Home Plans Are So Critical

Traditional houses are designed around flexible framing systems. Walls can be moved, rooms can expand, and floor plans can be adjusted relatively easily. Container homes, however, begin with rigid steel dimensions. Once you cut into the structure, you must reinforce it, making layout mistakes both expensive and difficult to correct.

This is why container home floor plans need to be approached differently. Instead of designing room by room, effective layouts are planned around functional zones: living, sleeping, cooking, bathing, and storagethen arranged in ways that reduce wasted space between them.

A strong container home floor plan:

  • Eliminates long hallways and dead corners

  • Groups plumbing and electrical systems efficiently

  • Allows one area to serve multiple purposes

  • Creates visual openness despite narrow dimensions

  • Balances privacy with flow

When floor plans are poorly thought out, even large multi-container homes can feel awkward and segmented. When they’re done well, even a single container can feel surprisingly comfortable.

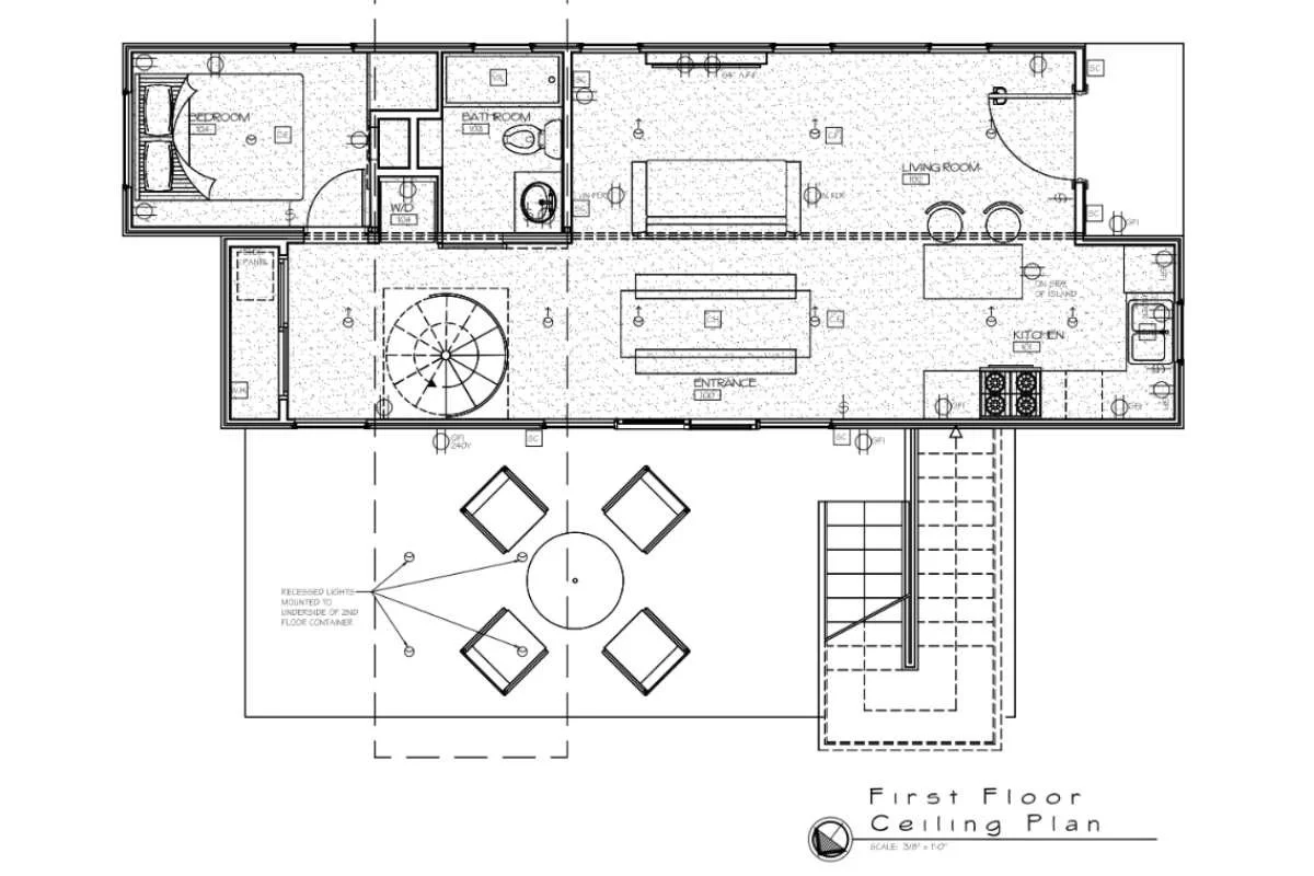
Interested in our container home’s floor plan? Check out Steelhaven’s blueprint for inspiration on your container home build.

1. Open-Concept Container Home Plans

Open-concept container home design works exceptionally well because it fights against the natural tunnel effect of the container shape. Removing unnecessary interior walls allows sightlines to extend from one end of the home to the other, which instantly increases the sense of space with a modern design style.

Rather than dividing the interior into small, boxed-in rooms, open layouts combine the kitchen, dining, and living areas into one continuous environment. This doesn’t mean sacrificing organization. Spaces can still be defined visually through:

  • Changes in flooring materials

  • Ceiling treatments

  • Lighting zones

  • Furniture arrangement

  • Partial-height dividers

For example, a kitchen island can serve as a boundary between cooking and living areas without blocking light or movement. This kind of subtle zoning keeps the home feeling structured while preserving openness.

2. Single-Container Home Plans

Single-container homes require the most discipline in layout and interior design. With limited square footage, every element must earn its place. The most successful single-container floor plans typically follow a linear sequence: bathroom at one end, kitchen along a side wall, and a combined living and sleeping area at the opposite end.

Instead of using permanent walls, many designs rely on flexible solutions:

  • Murphy beds that fold into cabinetry

  • Sofa beds that convert at night

  • Drop-leaf or wall-mounted tables

  • Sliding partitions instead of fixed walls

Storage becomes part of the architecture rather than an afterthought. Beds are often raised on platforms with drawers beneath. Seating doubles as storage. Wall cavities are used for shelving instead of bulky wardrobes.

Vertical space is equally important. Shelving that extends upward draws the eye higher, making ceilings feel taller and reducing clutter at floor level. In small container homes, clear floor space is more valuable than almost anything else.

3. Multi-Container Home Plans

When two or more containers are used, layout design shifts from micro-living to true residential planning. Containers can be arranged side by side to create wider rooms or positioned in shapes that naturally divide public and private areas.

Popular multi-container configurations include:

  • Parallel layouts for large open living rooms

  • L-shaped designs for privacy and outdoor courtyards

  • U-shaped plans around patios

  • Stacked container layouts for vertical living

These configurations allow designers to separate functions logically—living spaces in one container, bedrooms in another, and utility areas tucked away where they don’t interfere with daily life.

Courtyard designs are especially effective because they extend the usable space outdoors without increasing interior square footage. A small central patio can act as a living room extension, improving ventilation and bringing natural light deeper into the home.

4. Kitchen and Bathroom Container Home Plans

Plumbing defines a container home’s skeleton. Poor placement of kitchens and bathrooms can add thousands in extra labor and materials. Smart plumbing plans cluster all wet areas together to keep pipe runs short and simple.

Efficient and smart layouts often:

  • Place kitchens and bathrooms back-to-back

Stack bathrooms vertically in multi-story homes

  • Combine laundry with bathroom areas

  • Use compact fixtures and wall-mounted toilets

  • Replace swinging doors with pocket or sliding doors

Beyond cost savings, this approach frees more of the container’s length for living areas and reduces maintenance problems over time.

5. Built-In Furniture Plans For Shipping Container Homes

In shipping container homes, furniture is not just decor, it’s infrastructure. Built-in features eliminate the wasted gaps that freestanding furniture often creates in narrow spaces.

Common built-in strategies include:

  • Bed platforms with storage drawers

  • Window benches that hide storage

  • Staircases with integrated cabinets

  • Fold-down desks and dining tables

  • Wall-integrated wardrobes

These elements are designed as part of the architectural plan itself, allowing the home to function like a custom-designed cabin rather than a retrofitted shipping box.

6. Shipping Container Home Plans Optimized For Natural Light

Light is one of the most powerful design tools in small homes. A narrow container with poor lighting feels like a tunnel. The same container with well-placed windows feels open and airy.

Floor plans should prioritize:

  • Large openings at container ends

  • Long horizontal windows

  • Sliding glass doors

  • Skylights in kitchens and baths

  • Corner window cuts in multi-container builds

Natural light expands perceived space, improves comfort, and reduces reliance on artificial lighting.

7. Designing Container Home Plans With Efficient Traffic Flow

Flow determines whether a home feels calm or chaotic. In small layouts, every step matters. Good container home floor plans avoid unnecessary hallways and allow direct paths between major areas.

Effective circulation design:

  • Keeps bathrooms accessible without crossing bedrooms

  • Places kitchens near entries

  • Centers living spaces

  • Pushes bedrooms into quieter zones

  • Uses sliding doors instead of hinged ones

This reduces bottlenecks and makes daily routines feel effortless.

8. Container Home Floor Plans For Flexibility and Future Needs

The best container home floor plans don’t lock you into one lifestyle. Instead, they adapt. A dining nook today may become a home office tomorrow. A guest bed may become a permanent sleeping space. A rooftop can become a deck.

Designing for flexibility includes:

  • Movable partitions

  • Modular furniture

  • Neutral load-bearing zones

  • Expandable layouts

  • Extra utility access points

Adaptability ensures your container home continues working as your life changes.

Bringing Your Shipping Container Home Plans to Life

Container home floor plans succeed when they treat space as a valuable resource rather than a limitation. The strongest designs embrace the container’s narrow form and transform it into an asset through smart zoning, built-in furniture, and thoughtful lighting.

By focusing on open layouts, efficient plumbing zones, vertical space, integrated storage, and flexible design, you can turn even a single 40-foot container or 20-foot container into a comfortable, practical, and stylish home.

A well-designed container floor plan doesn’t just fit inside steel walls, it reshapes how those walls are experienced.

T.J. Fenske

T.J. Fenske is the visionary and builder behind Steelhaven, a unique three-shipping container home in Northern Michigan. From concept to completion, he played a direct role in every phase of building the container home—overseeing site planning, navigating permits and inspections, managing structural modifications, and shaping the interior layout and finishes. Beyond the build itself, T.J. brings real-world experience as a successful short-term rental host. Operating Steelhaven as an Airbnb, he’s gained valuable insight into guest experiences, property optimization, pricing strategies, and maintaining a high-performing unique stay.

Previous
Previous

The 6 Best Shipping Container Home Foundation Options

Next
Next

Why AirBnB Hosts Earn More Money With Container Home AirBnBs